| Sign In | Join Free | My isp.org.cn |
|
Brand Name : Magicart
Model Number : MG
Certification : CE, ISO, SGS, GOST, BV
Place of Origin : Henan, China
MOQ : 1 Set
Price : Negotiable
Payment Terms : L/C, D/A, D/P, T/T, Western Union, MoneyGram
Supply Ability : 30000 sets per year
Delivery Time : According to customer needs
Packaging Details : High quality plywood crate and plastic woven cloth
Capacity : 5t~800t, customized
Span : 5m~60m, customized
Lifting Height : 5m to 110m, customized
Class : A3~A7
Main electrical parts : Schneider, Siemens, CHNT
Color : Customer Requirements
Power source : 380V 50Hz 3Ph or customized
Control method : Pendant control, Remote control, Cabin control
Application : Steel, Precast Factory, Stone, Paper Factory, etc
After-sales service provided : Engineers available to service machinery overseas
New Design 20 Ton 50 Ton Double Girder Rail Mounted Gantry Crane Price With Trolley
Product Description
Rail gantry crane is mainly composed of gantry frame, lifting trolley, long crane travelling mechanism, cab and electric control system. The gantry crane is in box-shape structure. The trolley adopts vertical reaction wheel when the lifting load is below 20t, and horizontal reaction wheel when the lifting load is above 20t run at the girder side. The girder is of single -girder bias truck and the leg is L-shaped, with large lifting space, L type make the lifting long piece objects cross over cantilever side from inner span easily.
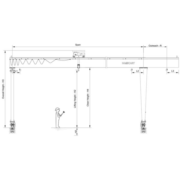
Drawing and Specification

| Load Capacity (ton) | Span /Rail Gauge (m) | Max. Lifting height-H2 (m) | Duty Class |
| 1 | 5~35 | 5~25 | A3 or A5 |
| 3 | 5~35 | 5~25 | A3 or A5 |
| 5 | 5~35 | 5~25 | A3 or A5 |
| 10 | 5~35 | 5~25 | A3 or A5 |
| 12.5 | 5~35 | 5~25 | A3 or A5 |
| 16 | 5~35 | 5~25 | A3 or A5 |
| 20 | 5~35 | 5~25 | A3 or A5 |
| 32 | 5~35 | 5~25 | A3 or A5 |
| Customizable | Customizable | Customizable | Customizable |
Advantages
1. Simple structure, Easy installation.
2. Good usability and high performance efficiently.
3. Low and easy maintenance.
4.Standardized, generalized and serialized parts.
Product Details

Package and Delivery
1. Discard the "consult-order-pay-ship" process.
2. Develop a process to minimize downtime on your equipment.
3. Our service principle is: ship first, then discuss.
4. You are on call 7 days/24 hours a day, no matter warranty period passed or not.

Installation and Commissioning

FAQ
A: 1 Set;
2. Q: What's your package?
A: Main body in plywood box or in plastic woven cloths; Spare parts in plywood boxes;
3. Q: What's your delivery period?
A: Within 10/25/40 days after your prepayment received; exact period should be based on detailed requirements and actual period;
4. Q: What's your warranty period?
A: 12 months from cranes accepted;
5. Q: Do you have engineer oversea installation service?
A: Yes; We have;
6. Q: What kinds of products do you have?
A: All kinds of industrial electric winch (especially non-standard); Overhead Crane; Gantry Crane, Electric Hoist; Screw Hoist; Radial/Flat Gate Hoist; Steel Gate; etc.
7. Q: Could we buy spare parts in local once they are out of work?
A: Our main electrical parts brand is Siemens or Schneider brand; it's very easy to buy all the world. But if there is any difficulty, we can post to you by express, such as DHL, UPS, FEDEX, Aramex, etc.
8. Q: Do you provide lift tools?
A: Yes, we can provide any kinds of lift tools such as lift sling belt, lift clamp, grab, magnet , pulley blocks, hook, lock catch, wire rope, fiber rope, etc.
9. Q: Could your winches drag inclined?
A: Yes, our electric winches could drag horizontal, drag inclined, hoisting vertical.
|
|
Double Girder Rail Mounted Gantry Crane 20 Ton 50 Ton With Trolley Images |